金沢不動産売買ナビ

お気軽にお電話ください!

076-222-8828

売りたい方
無料査定依頼
買いたい方
不動産リクエスト
  • 販売不動産検索
  • 無料査定・相談
  • コラム
  • よくある質問
  • 選ばれる理由
  • お役立ちリンク
  • お気に入り一覧

お気軽にお電話ください!

076-222-8828

売りたい方
無料査定依頼
買いたい方
不動産リクエスト
金沢不動産売買ナビ > 不動産情報 > 白山市 > 白山市八幡町(戸建)
NEW

白山市八幡町(戸建)

お気に入りに追加
(0人がお気に入り)
更新日:2026年02月27日
価格3,900万円
土地面積 336.46㎡(101.77坪)
建物面積 124.78㎡(37.74坪)
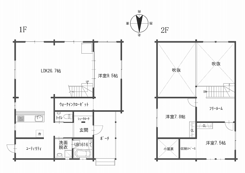
間取り3SLDK
白山市八幡町リ117番地1 北鉄バス「八幡町」 徒歩5分
一戸建て
自然に囲まれた穏やかな築浅ログハウスが魅力です!
近隣には四季折々の景色と多彩なアクティビティが楽しめる獅子吼高原があり、休日には気軽にアウトドアや散策を満喫できます。澄んだ空気と豊かな自然環境は、日々の暮らしにゆとりと癒しをもたらしてくれます☆
夜には街明かりが少なく、美しい星空を眺める贅沢な時間も。この地ならではの静けさの中で、ゆったりとしたスローライフを実現できるロケーションです☆
自然とともに暮らす理想の住まいを、ぜひ現地でご体感ください♪
資料をダウンロード 地図で見る
白山市八幡町(戸建)
価格3,900万円
土地面積 336.46㎡(101.77坪)
建物面積 124.78㎡(37.74坪)
白山市八幡町リ117番地1
土地
所在地 白山市八幡町リ117番地1
土地面積 336.46㎡(101.77坪)
面積種別 公簿面積
地目 宅地
現況 建付地
都市計画区域 市街化区域
用途地域 準工業地域
建ペイ率 60%
容積率 200%
道路種別 公道
前面道路幅 北 6.9m  
間口 12.9m
角地/非角地 非角地
交通 北鉄バス「八幡町」 徒歩5分
電気 北陸電力
飲水 公営上水
排水 公共下水
ガス LP(プロパン)ガス
小学校 朝日
中学校 鶴来
備考
建物
建物構造 木造 2階建て
間取りタイプ 3SLDK
間取り詳細 1階:LDK26.7帖、洋9.5帖、洗面、浴室、WC、WIC
2階:洋7.8帖、洋7.5帖、小屋裏
建築年数 2022年01月
延床面積 124.78㎡(37.74坪)
駐車台数 2台
備考
取引条件
施設負担金 実費
引渡日 相談
建築条件 なし
取引態様 仲介
取引条件備考 現地案内をご希望の際は、事前にご連絡をお願い致します。
担当者:吉田 康祐

石川県知事(6)第3529号/(公社)石川県宅地建物取引業協会会員

株式会社 苗加不動産

売買営業部(もりの里店) 金沢市もりの里2丁目21番地/TEL.076-222-8828

お客さまのご希望の不動産をスタッフがお探しします!
  • 不動産カテゴリを選択

  • 新築・中古

  • 価格帯を選択

    万円 〜 万円
  • 市区町村を選択

  • 面積

    ㎡(坪) 〜 ㎡(坪)
お気軽に
お問い合わせください!
  • 無料査定依頼

    不動産売却で
    お悩みの方は、
    まず資産価値をチェック!

  • 不動産リクエスト

    お客さまの
    ご希望の不動産を
    お探しします!

  • お問い合わせ
    076-222-8828
  • 販売不動産検索
  • 無料査定・相談
  • コラム
  • よくある質問
  • 選ばれる理由
  • お役立ちリンク
  • お気に入り一覧
  • 会社概要
  • 店舗紹介
  • 個人情報保護方針
  • のうか不動産
  • 金沢賃貸ナビ
  • 金沢学生マンションナビ
  • ミニミニ金沢
  • 金沢テナントナビ
のうか不動産 のうか不動産
株式会社 のうか不動産
〒920-1167 石川県金沢市もりの里2丁目21番地
営業時間 / 10:00〜18:00 定休日 / 定休なし
プライバシーマーク

株式会社のうか不動産は「プライバシーマーク」
使用許諾事業者として認定されています。

株式会社 のうか不動産
〒920-1167 石川県金沢市もりの里2丁目21番地
営業時間 / 10:00〜18:00 定休日 / 定休なし
(c) NOKA REAL ESTATE Co.,Ltd. all rights reserved.