金沢不動産売買ナビ

お気軽にお電話ください!

076-222-8828

売りたい方
無料査定依頼
買いたい方
不動産リクエスト
  • 販売不動産検索
  • 無料査定・相談
  • コラム
  • よくある質問
  • 選ばれる理由
  • お役立ちリンク
  • お気に入り一覧

お気軽にお電話ください!

076-222-8828

売りたい方
無料査定依頼
買いたい方
不動産リクエスト
金沢不動産売買ナビ > 不動産情報 > 金沢市 > 金沢市末町(戸建)
NEW

金沢市末町(戸建)

お気に入りに追加
(0人がお気に入り)
更新日:2025年12月02日
価格1,590万円
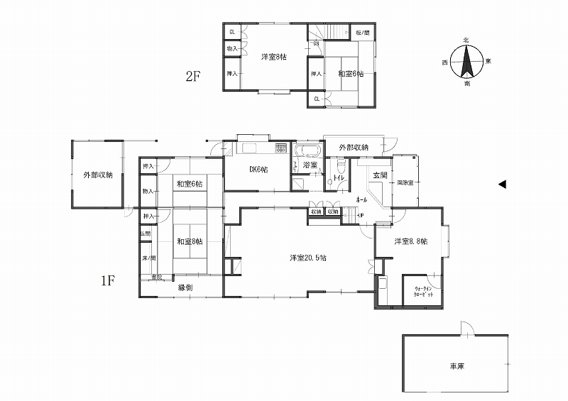
土地面積 498.95㎡(150.93坪)
建物面積 149.29㎡(45.16坪)
間取り6DK
金沢市末町拾六字64番地 北鉄バス「永安町」 徒歩5分
一戸建て
空気の美味しい環境で、広々とした敷地を有した中古戸建のご紹介です!!約150坪の敷地は家庭菜園はもちろん、趣味にも十分に活躍してくれそうです☆現状で約7台が駐車可能というのも嬉しいですね♪建物も水廻りを中心にリフォームが施され心地よくお住まい頂けます☆是非、現地もご内見ください!
資料をダウンロード 地図で見る
金沢市末町(戸建)
価格1,590万円
土地面積 498.95㎡(150.93坪)
建物面積 149.29㎡(45.16坪)
金沢市末町拾六字64番地
土地
所在地 金沢市末町拾六字64番地
土地面積 498.95㎡(150.93坪)
面積種別 公簿面積
地目 宅地
現況 建付地
都市計画区域 市街化区域
用途地域 第一種中高層住居専用地域
建ペイ率 60%
容積率 200%
道路種別 公道
前面道路幅 東 6.7m  
間口 15.6m
角地/非角地 非角地
交通 北鉄バス「永安町」 徒歩5分
電気 北陸電力
飲水 公営上水
排水 公共下水
ガス LP(プロパン)ガス
小学校 犀川
中学校 犀生
備考
建物
建物構造 木造 2階建て
間取りタイプ 6DK
間取り詳細 1階:DK6帖、洋20.5帖、洋8.8帖、和8帖、和6帖、WC、浴室、WIC、外部収納、車庫
2階:洋8帖、和6帖
建築年数 1979年08月
延床面積 149.29㎡(45.16坪)
駐車台数 7台
備考 ※現状有姿渡し
取引条件
施設負担金
引渡日 相談
建築条件 なし
取引態様 仲介
取引条件備考 現地案内をご希望の際は、事前にご連絡をお願い致します。
担当者:渡辺 誠

石川県知事(6)第3529号/(公社)石川県宅地建物取引業協会会員

株式会社 苗加不動産

売買営業部(もりの里店) 金沢市もりの里2丁目21番地/TEL.076-222-8828

お客さまのご希望の不動産をスタッフがお探しします!
  • 不動産カテゴリを選択

  • 新築・中古

  • 価格帯を選択

    万円 〜 万円
  • 市区町村を選択

  • 面積

    ㎡(坪) 〜 ㎡(坪)
お気軽に
お問い合わせください!
  • 無料査定依頼

    不動産売却で
    お悩みの方は、
    まず資産価値をチェック!

  • 不動産リクエスト

    お客さまの
    ご希望の不動産を
    お探しします!

  • お問い合わせ
    076-222-8828
  • 販売不動産検索
  • 無料査定・相談
  • コラム
  • よくある質問
  • 選ばれる理由
  • お役立ちリンク
  • お気に入り一覧
  • 会社概要
  • 店舗紹介
  • 個人情報保護方針
  • のうか不動産
  • 金沢賃貸ナビ
  • 金沢学生マンションナビ
  • ミニミニ金沢
  • 金沢テナントナビ
のうか不動産 のうか不動産
株式会社 のうか不動産
〒920-1167 石川県金沢市もりの里2丁目21番地
営業時間 / 10:00〜18:00 定休日 / 定休なし
プライバシーマーク

株式会社のうか不動産は「プライバシーマーク」
使用許諾事業者として認定されています。

株式会社 のうか不動産
〒920-1167 石川県金沢市もりの里2丁目21番地
営業時間 / 10:00〜18:00 定休日 / 定休なし
(c) NOKA REAL ESTATE Co.,Ltd. all rights reserved.